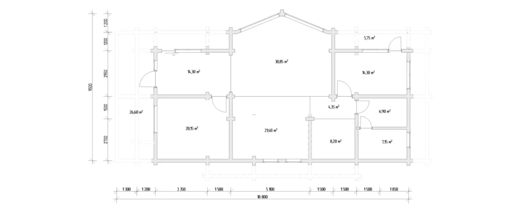
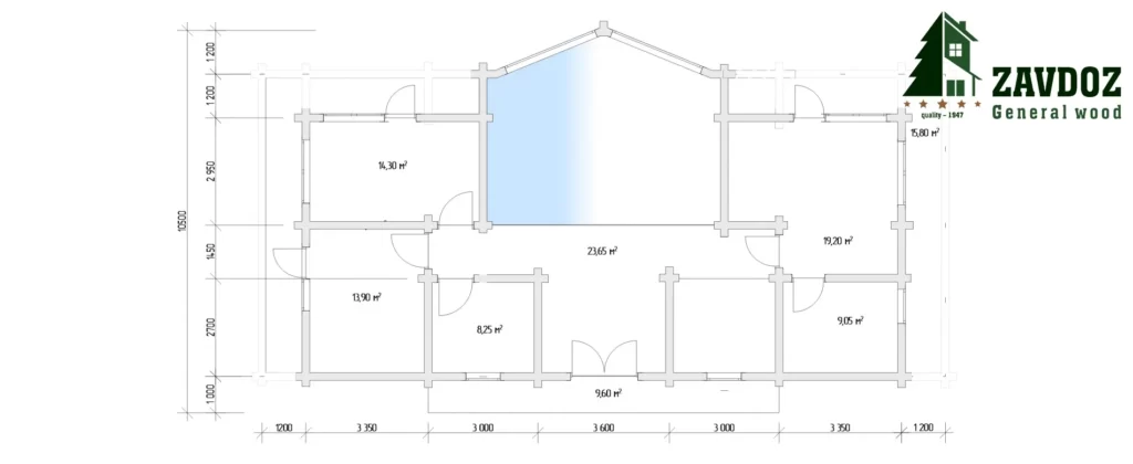
Проект дома из клееного бруса в Крыму подойдёт для тех, кто планирует строительство деревянного дома под ключ для постоянного проживания или отдыха. Планировка разработана с учётом комфортного использования пространства и подходит для загородного участка.
Дом из клееного бруса выглядит современно и аккуратно без сложной фасадной отделки. Такая технология хорошо подходит для строительства домов в Крыму благодаря мягкому климату региона.
Проект можно адаптировать под участок и изменить планировочные решения перед началом строительства. Доступна реализация дома из клееного бруса под ключ в Симферополе, Севастополе, Алуште и других районах Крыма.
Подходит тем, кто рассматривает строительство дома под ключ в Крыму по готовому проекту с возможностью индивидуальной доработки.








