Дом 231
ДКБ "Демерджи"
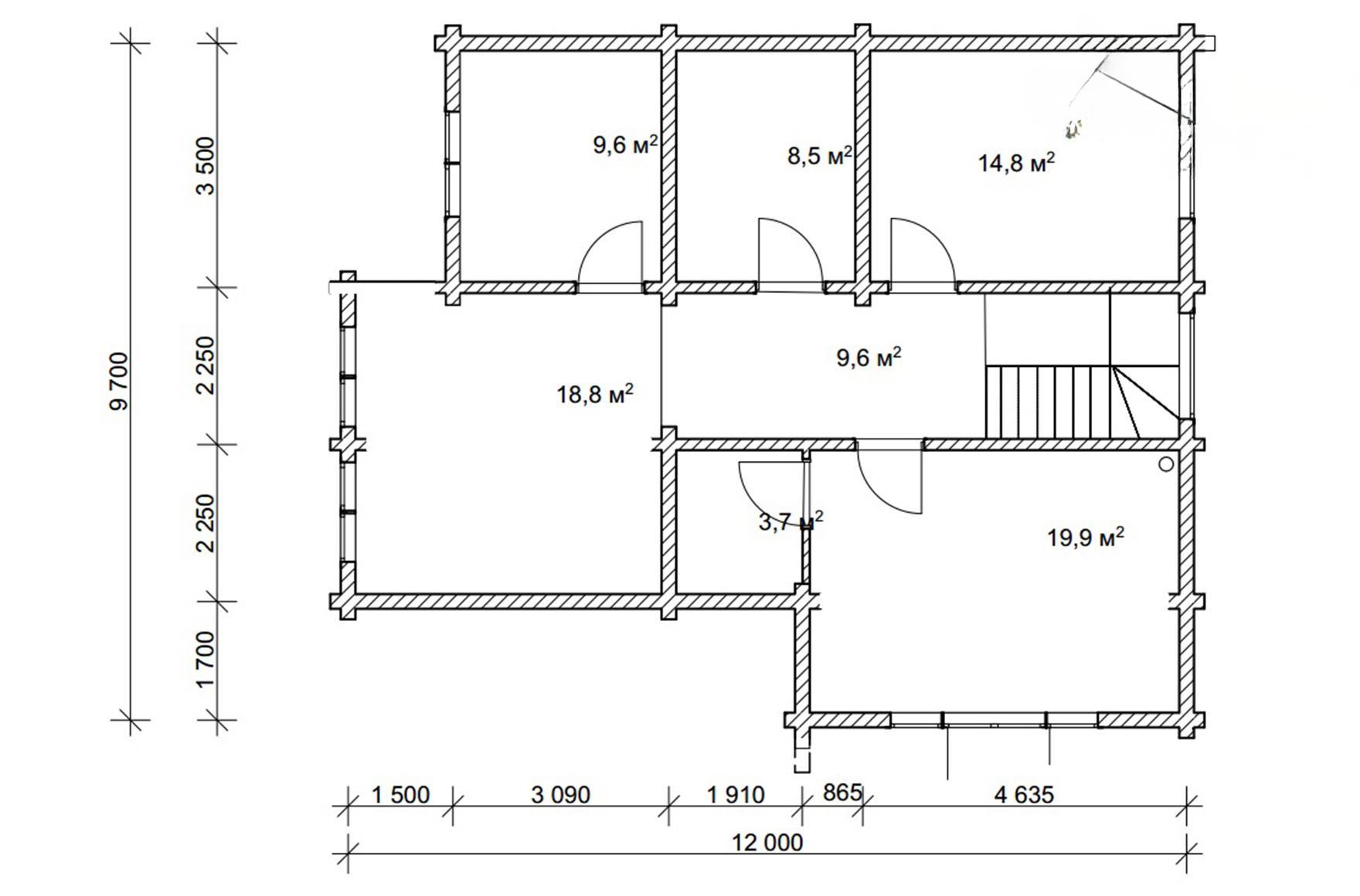
О проекте
ДКБ "Демерджи"- Площадь: 225
- Этажей: 2
- Размер: 16x17
Хотите изменить планировку?
Это совсем просто! В нашей компании работает штат опытных архитекторов, которые на основании ваших идей создадут индивидуальные планировки, внесут корректировки в фасад. Архитектор может встретиться с вами, как в одном из наших офисов, так и в любом другом удобном для вас месте, в том числе на участке.
Хочу изменить планировкуВидео о проектах
Что входит в стоимость
Фундамент
Топографическая съемка — это комплекс инженерно-геодезических работ по измерению участка местности и занесению в топографический план данных об особенностях рельефа, положении всех объектов и расстоянии между ними.
- Геологические изыскания – это целая группа исследований, ориентированных на определение геологических и гидрогеологических условий на участке, намеченном для строительства частного дома.
- Комплекс мероприятий представлен не только полевыми испытаниями на местности, но и проведением лабораторных, камеральных анализов, составлением прогнозов касательно развития опасных геологических процессов под воздействием природных и антропогенных факторов.
- Исследование проводится путем бурения 3-х скважин глубиной 8 метров с отбором грунта. Отобранный грунт проходит лабораторные исследования физических и механических свойств, по результатам исследований составляется отчет, который используется при расчетах несущей способности фундамента.
Проект КЖ (конструкции железобетонные):
- Расчет статических нагрузок на фундамент в программе SKAD.
- Разработка проекта КЖ в программе Autocad.
- Привязка осей совместно с заказчиком, составление акта привязки.
- Привязка реперной точки нулевой отметки с заказчиком.
- Проверка красных линий на участке. Согласование с коттеджным поселком (если требуется).
- Фотофиксация привязки в Личном кабинете.
Подбор и проверка РБУ (растворно-бетонного узла) по чек-листам и по географии:
- Наличие собственной лаборатории, лаборантов, непросроченной поверки лабораторного оборудования.
- Проверка бухгалтерской отчетности.
- Проверка наличия собственного парка миксеров.
- Проверка паспорта качества 1-й кат. по ГОСТ 7473-2010 с заполнением всех пунктов.
Сечение ростверка 300х400 (h) мм.
Первый этап работ:
- Выравнивающий слой песчаной подсыпки.
- Демпфирующий элемент (ПСБ-С15, h50мм), для устранения негативного влияние сил морозного пучения на конструкцию фундамента.
- Пространственный арматурный каркас (диаметр арматуры 6, 12 мм) с соблюдением геометрических размеров, толщины защитного слоя бетона, анкеровки (с загибами в угловых зонах) и соединениями арматуры согласно технологии вязки.
- Опалубка из ламинированной фанеры или доски.
Заливка:
- Контроль погодных условий. Заливка зимой осуществляется при соответствии температуры противоморозной добавки и погодных условий с учетом возможных похолоданий в ближайшие 2 суток.
- Использование бетононасоса
- Виброуплотнение бетонной смеси
- Контроль заливки со стороны менеджера, инженера технического надзора. Фотофиксация процесса заливки.
- Точность высотных отметок — 20 мм по всей длине ростверка.
Набор прочности:
- Уход за бетоном: летом — поливка, зимой — укрывание или прогревание, в зависимости от условий.
- Контроль набора прочности склерометром (не менее 12,5 МПа для деревянного дома, 15 МПа — для кирпичного).
- В случае, если бетон не набрал расчетную прочность — 100% демонтаж/монтаж производится за счет Good Wood.
- Шлифовка при необходимости для выведения до норм точности.
- Сечение свай 200х200х3000 (h) мм.
- В серийных проектах из клееного бруса мы используем забивные ж/б сваи сечением 200х200 и длиной 3 метра, если иное не требуется по результатам геологии.
- Сваи забиваются на площадке специальной техникой — миникопром. После забивки свай производится разбивка оголовков и перевязка каркаса с ростверком.
При монтаже конструкции фундамента устраиваются закладные для ввода в дом коммуникаций: электричества, водоснабжения и канализации.
В случае отсутствия на участке центрального водоснабжения вместе с закладной под водоснабжение устраивается дополнительная закладная под электрику для подключения питания насоса.
Приемка скрытых работ:
- Приемка инженером технического надзора по чек-листу.
- Контроль защитного слоя арматуры 50-20 мм+10 мм.
- Контроль толщины песчаной подсыпки +-50 мм.
- Контроль допуска между стержнями продольной арматуры -20+40 мм.
- Контроль отклонения скважин от оси ростверка +-150 мм.
- Контроль диаметра арматуры, шага каркаса, технологий вязки на соответствие КЖ.
- Контроль надежности опалубки.
- Контроль разрыва арматуры с грунтом.
- Контроль перевязки арматурного каркаса ростверка с арматурой свай.
- Фотофиксация скрытых работ (не менее 30 фотографий в личном кабинете заказчика).
Окончательная приемка:
- Приемка инженером технического надзора по чек-листу.
- Контроль геометрии (прямолинейность +-30 мм). Отклонения по диагоналям 30/40/50 мм при размерах до 8 м, 8-16 м, свыше 16 м соответственно.
- Фиксация окончательной приемки в личном кабинете заказчика.
Стеновой комплект
В состав рабочего проекта КД (конструкции деревянные) входят:
- Стеновой комплект:
- Общие указания.
- Изометрические виды.
- Планы этажей.
- План 0-го венца.
- Планы балок и монтажные схемы балок по всем перекрытиям.
- Развертки стен.
- Комплект узлов (более 700 уникальных технических решений).
- Раскрой балок.
- Детальная раскладка материала (разбрусовка).
Для защиты нижнего венца от гниения между фундаментом и нижним венцом бруса мы прокладываем подкладочную доску из лиственницы. У лиственницы более плотная древесина, она не боится воды и изолирует нижний венец от намокания.
ПРОИЗВОДСТВО БРУСА КАЧЕСТВА GOOD WOOD:
- Отбор поставщиков. Поставщики сырья отбираются по специально составленным чек-листам с требованиями, одним из которых является обязательная сертифицированная вырубка. Это означает, что деревья вырубаются подконтрольно, с высадкой новых деревьев на вырубленной делянке.
- Входной контроль. Входящее сырье также проходит жесткий контроль. Мы закупаем сырье самого высокого качества, не подходящее под наши требования — не принимаем.
- Сушка доски. В течение месяца сырье проходит естественную сушку на прозводственных площадках GOOD WOOD. Затем доска помещается в сушильные камеры «Mühlböck Vanicek», где сушится по европейскому режиму сушки «Quality» (мягкий режим), что позволяет снять внутреннее напряжение в пиломатериале и кристаллизовать смолу.
- Строжка и сращивание. Высушенная доска проходит 1-й этап строжки, на котором выявляются скрытые пороки древесины. Места с пороками вручную помечаются специальным маркером и вырезаются на автоматической линии, а затем доска сращивается соединением на микрошип на автоматической линии SMB. После чего уже срощенная доска проходит второй этап строжки.
- Нанесение клея и прессование. Используется клей AkzoNobel с нулевой эмиссией формальдегидов, предназначенный для склеивания большепролетных балок. Клеенанесение производится автоматической системой раздельным способом (клей и отвердитель), с постоянным контролем параметров температуры и влажности сырья и окружающего воздуха. В соответствии с полученными данными программа выбирает необходимое время прессования и дает команду на пресс, что обеспечивает необходимое качество склейки конструкций. Автоматизированные прессы создают давление на ламели 12 кг/см2 (при этом давление в гидросистеме аппарата равно 100 атм.). С помощью наших прессов возможно прессование деревянных конструкций длиной до 13,5 метров.
- Профилирование бруса. Автоматизированное профилирование бруса осуществляется на четырехсторонних американских станках Holytek общей установленной мощностью, превышающей 300 киловатт (данное оборудование не поставляется в РФ).
- Раскрой бруса. На этом этапе брусовые детали раскраиваются под размер, нарезаются чашки в местах соединений бруса, на видимых элементах срезается шип-паз и осуществляется фигурная подрезка консолей. Автоматизированный раскрой и нарезка чашек производится на современных немецких станках «Hundegger» (станки не старше 3 лет). Конструкторская программа конвертируется в читаемый для станка формат и загружается в компьютер станка, и дальнейший раскрой и обработка деталей идут автоматически. Благодаря компьютерной программе раскроя бруса достигается минимальное количество отхода (менее 1%). На производстве автоматически поддерживается правильная температура и влажность воздуха, необходимая для качественной обработки древесины и получения качественной продукции.
- Герметизация торцов бруса. Торцы бруса — самое уязвимое место для проникновения влаги через открытые поры, что может повлечь за собой растрескивание бруса на торцах. Для избежания этого мы наносим на торцы специальный жидкий герметик, закрывающий поры и препятствующий проникновению влаги.
- Упаковка. Изготовленные детали дома упаковываются в пачки и покрываются специальной пленкой с защитой от ультрафиолетовых лучей. По нормам компании, нарезанный и упакованный брус не может хранится на производстве в упакованном виде более 5 дней, и в течение 5-ти дней должен быть доставлен на стройку.
Клееные балки и столбы проходят те же стадии производства и контроля, что и клееный стеновой брус.
Клееные балки прямоугольного сечения применяются в качестве горизонтальных и наклонных несущих элементов.
Клееные столбы квадратного сечения применяются в качестве вертикальных опорных элементов. Для безопасности при эксплуатации, лучшей сохранности покраски и лучшего эстетического вида со всех углов столбов на производстве снимаются фаски.
- Для скрепления венцов бруса и предотвращения неравномерной усадки используются металлические оцинкованные шпильки и деревянные нагели.
- В труднодоступных для регулировки местах, используются специальные соединительные шурупы «Узел сила», которые состоят из шурупа, пружины и специальных шайб — благодаря такой конструкции, верхний брус всегда притягивается к нижнему в процессе усадки дома.
- Для скрепления балок и бруса, находящихся снаружи дома, используются специальные шпильки из нержавеющей стали, которые не ржавеют при контакте с окружающей средой и не оставляют подтеков на брусе.
- Наружные столбы, расположенные на террасах и крыльцах, устанавливаются на специально разработанные GOOD WOOD металлические опоры, изолирующие столб от фундамента и предотвращающие его намокание и гниение.
- Для регулировки конструкций в процессе усадки используются усиленные домкраты, разработанные и производимые специально для GOOD WOOD.
На период строительно-монтажных работ и дальнейшей внутренней отделки дома устанавливается межэтажная черновая временная лестница. Она позволяет проводить работы и осмотры дома, надежна и безопасна, служит для перемещения между этажами вплоть до установки чистовой постоянной лестницы.
Доставка бруса на объект в день начала сборки.
- Контроль соблюдения сроков сборки менеджером проекта.
- Использование спецтехники для разгрузки и монтажа.
- Фотоотчеты процесса строительства каждые 3 дня с объекта в личный кабинет.
- Видеотрансляция со строительства (опционально).
- Монтаж гидроизоляционного слоя на поверхность фундамента.
- Контроль соблюдения диагоналей.
- Проверка на соответствие проекту.
- Контроль вертикальности брусовых стен и столбов.
- Проверка уровня междуэтажных перекрытий.
- Проверка установки шпилек, нагелей, узлов «сила», домкратов.
- Проверка межвенцовых зазоров (3 мм).
- Контроль механических повреждений бруса.
- Проверка сроков сборки.
- Контроль соблюдения техники безопасности и охраны труда.
Кровля
ТЕХНОНИКОЛЬ SHINGLAS многослойная черепица «Ранчо», цвет коричневый
Окна и двери
Команда строителей
30 лет гарантии
Персональный менеджер
Технадзор
Что не входит в стоимость
Построенные дома
Примеры интерьеров
ОДИН ПОДРЯДЧИК НА ВСЕ ВИДЫ РАБОТ
7 ключевых особеннсотей строительства с нами:
- Цену фиксируем в день обращения и не поднимем, даже если подорожают стройматериалы.
- Строим дом под ключ за 90 дней.
- Наши дома безопасные и пожаростойкие.
- У построенных нами домов нет проблем с усадкой древесины 1-2%.
- Имеем свое производство клееного бруса.
- Гарантия 30 лет, а на бессучковый премиум-брус – 50 лет.
- Строим из бессучкового премиум – бруса.
Если Вы точно знаете, как должен выглядеть ваш дом, мы знаем, как его построить!
Наши архитекторы воплотят в жизнь любые Ваши идеи по проектированию дома и обустройству участка Мы создадим для Вас настоящий дом для жизни.

Обратившись к нам, Вы гарантированно получите не только лучшую цену, но и 100% качественный дом точно в срок
Качество, надежность и учет климатических особенностей
Строительство современного дома из клееного бруса под ключ в Крыму требует глубокого понимания климатических особенностей региона. Наши опытные специалисты тщательно учитывают все нюансы, чтобы гарантировать не только высочайшее качество, но и долговечность вашего будущего дома. Выбор клееного бруса как основного материала не случаен — он идеально подходит для крымского климата, обеспечивая оптимальный уровень теплоизоляции и устойчивость к внешним воздействиям.Вместе с тем, наша компания предлагает конкурентоспособные цены, не снижая планку качества. Мы уверены, что каждый дом должен быть не только красивым и удобным, но и доступным. Наша команда профессионалов берет на себя все этапы строительства, от проектирования до сдачи дома точно в срок. Мы понимаем, как важно для вас получить результат, соответствующий вашим ожиданиям, и поэтому готовы предложить инновационные решения, которые откроют новые горизонты для вашего будущего дома.Выбирая нас, вы выбираете надежного партнера, который заботится о вашем комфорте и безопасности, создавая современный дом из дерева, идеально вписывающийся в уникальную природу Крыма.







Что входит в стоимость
Уже построенные дома
Почему с нами надежно
Отделка дома